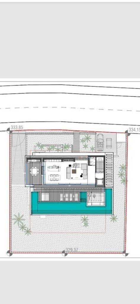
PARCELA RESIDENCIAL, situada en la prestigiosa urbanización Lagos de Abama, Campo de Golf Abama, a pocos minutos del Hotel Ritz. Dispone de una superficie parcela de 850 m2 y una superficie edificable de 345 m2, en dos alturas mas sótano y garaje. La magnifica posición que tiene esta parcela le permite tener una maravillosa vistas al mar y las islas de La Gomera, El Hierro y La Palma. En la misma urbanización disponemos a la venta de tres parcelas mas con las siguientes superficie y precios; 1. – Superficie parcela; 855 m2 Superficie Edificable; 345 m2 Precio de venta; 1.300. 000 2. – Superficie parcela; 916 m2 Superficie Edificable; 366,40 m2 Precio de venta; 1.650. 000 3. – Superficie parcela; 1.023 m2 Superficie Edificable; 409,20 m2 Precio de venta; 1.850. 000 Estas dos ultimas parcelas (2 y 3), se encuentra una al lado de la otra con lo cual se pueden unir y llevar a cabo la construcción de una sola maravillosa y espectacular villa.
Agustin Morales Properties
Compra venta de Propiedades
Casa fundada en 1925.
















Comparar listados
Comparar